Eko. 4 + Rodinný dom
Cena domu od: - €
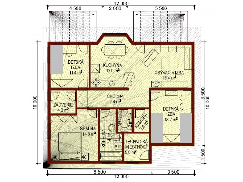
Zaoberáme sa výstavbou verzii najpredávanejších nízko energetických modelov. Ide o rodinné dom s maximálnym priestorom na minimálnom pôdoryse. Dodržiava zásady ergonómie a orientácie na denné svetlo. Dom ponúka vysoký štandard vybavenia a pohodlie obytného priestoru. Možný je aj variant so zimnou záhradou, s izbou pre rodičov, s pracovňou alebo dvoma, troma detskými izbami. Tento najnovší model ponúka aj samostatné wc, tech. miestnosť a komoru.
| Šírka: | 12 m |
| Dĺžka: | 10 m |
| Úžitková plocha: | 103 m2 |
| Zastavaná plocha: | 115 m2 |
| Obstavaný priestor: | 420 m3 |
Časté otázky









