Bungalov 3 Rodinný dom
Cena domu od: - €
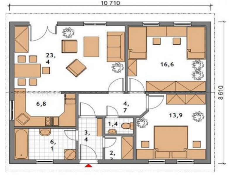
Rodinný dom BUNGALOV 3 patrí do kategórie menších rodinných domov. Jedná sa o základný variant bungalovu bez možnosti podkrovnej nadstavby. Úžitková plocha je 78,5 m2 a umožňuje kvalitné bývanie až pre štvorčlennú rodinu. Zastavaná plocha tejto varianty je 92,21 m2. Vnútorné proporcie domu možno veľmi ľahko prispôsobiť požiadavkám zákazníka. BUNGALOV 3 je vhodný na rovinatý, prípadne mierne svahovitý terén. Je možná výstavba v ďalších variantoch s garážou alebo s garážovým státím.
| Šírka: | 10,71 m |
| Dĺžka: | 8,61 m |
Časté otázky




