Klasik 2 Rodinný dom
Cena domu od: - €
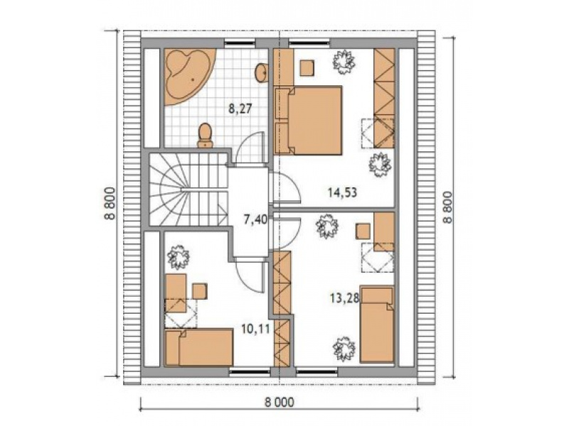
Rodinný dom KLASIK 2 patrí do kategórie stredne veľkých domov. Jedná sa o základný variant prízemného domu s obytným podkrovím. Úžitková plocha je 112,5 m2 a umožňuje kvalitné bývanie až pre päťčlennú rodinu. Zastavaná plocha tejto varianty je 70,4 m2. Vnútorné proporcie domu možno veľmi ľahko prispôsobiť požiadavkám zákazníka. KLASIK 2 je vhodný na rovinatý, prípadne mierne svahovitý terén. Je možná výstavba v ďalších variantoch s garážou alebo s garážovým státím.
| Šírka: | 8 m |
| Dĺžka: | 8,8 m |
Časté otázky





