Klasik 3 Rodinný dom
Cena domu od: - €
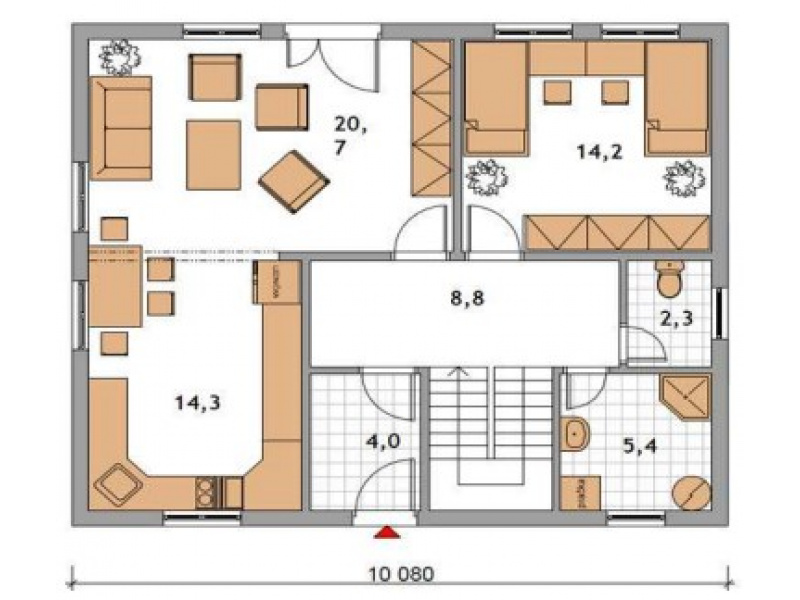
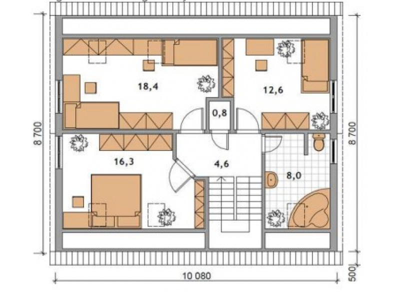
Rodinný dom KLASIK 3 patrí do kategórie stredne veľkých domov. Jedná sa o prízemný dom s obytným podkrovím. Úžitková plocha tohto domu je 130,4 m2 a umožňuje kvalitné bývanie až pre sedemčlennú rodinu. Zastavaná plocha tejto varianty je 87,7 m2. Vnútorné proporcie domu možno veľmi ľahko prispôsobiť požiadavkám zákazníka. KLASIK 3 je vhodný na rovinatý, prípadne mierne svahovitý terén. Je možná aj výstavba ďalších variantov s garážou alebo s garážovým státím.
| Šírka: | 10,08 m |
| Dĺžka: | 8,7 m |
Časté otázky





