Klasik 4 Rodinný dom
Cena domu od: - €
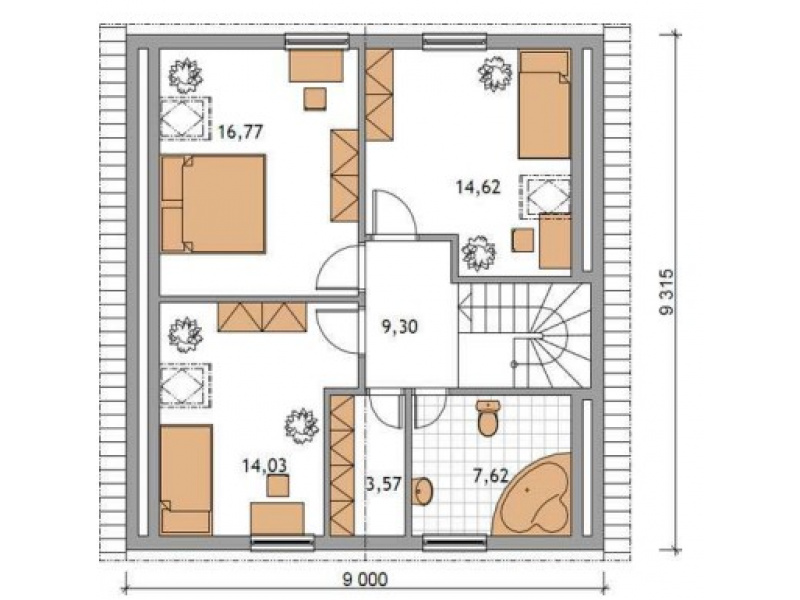
Rodinný dom KLASIK 4 patrí do kategórie stredne veľkých domov. Jedná sa o základný variant prízemného domu s obytným podkrovím. Úžitková plocha je 137 m2 a umožňuje kvalitné bývanie až pre päťčlennú rodinu. Zastavaná plocha tejto varianty je 83,69 m2. Vnútorné proporcie domu možno veľmi ľahko prispôsobiť požiadavkám zákazníka. KLASIK 4 je vhodný na rovinatý, prípadne mierne svahovitý terén. Je možná výstavba v ďalších variantoch s garážou alebo s garážovým státím.
| Šírka: | 9 m |
| Dĺžka: | 9,315 m |
Časté otázky





