Klasik 5 Rodinný dom
Cena domu od: - €
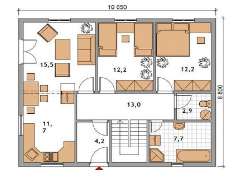
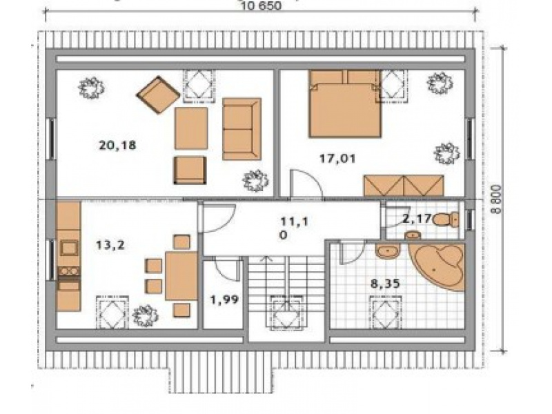
Rodinný dom KLASIK 5 patrí do kategórie stredne veľkých domov. Jedná sa o dvojgeneračný prízemný dom s obytným podkrovím. Úžitková plocha tohto domu je 153,4 m2 a umožňuje kvalitné bývanie až pre šesťčlennú rodinu. Zastavaná plocha tejto varianty je 93,72 m2. Vnútorné proporcie domu možno veľmi ľahko prispôsobiť požiadavkám zákazníka. KLASIK 5 je vhodný na rovinatý, prípadne mierne svahovitý terén. Je možná výstavba ďalších variantov s garážou alebo s garážovým státím.
| Šírka: | 10,650 m |
| Dĺžka: | 8,8 m |
Časté otázky





