Klasik 6 Rodinný dom
Cena domu od: - €
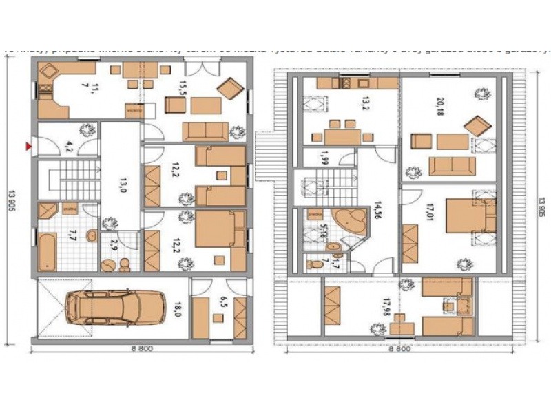
Rodinný dom KLASIK 6 patrí do kategórie veľkých domov. Jedná sa o dvojgeneračný prízemný dom s obytným podkrovím. Zastavaná plocha činí 122,36 m2 a úžitková plocha tohto domu je 197 m2. Tento dom umožňuje kvalitné bývanie až pre osemčlennou rodinu. Vnútorné proporcie domu možno veľmi ľahko prispôsobiť požiadavkám zákazníka. KLASIK 6 je vhodný na rovinatý, prípadne mierne svahovitý terén. Je možná výstavba ďalšie varianty s dvoj garážou alebo s garážovým státím.
| Šírka: | 13,905 m |
| Dĺžka: | 8,8 m |
Časté otázky




